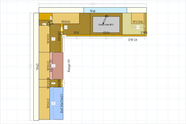
Basic kitchen pricing is based on a total of 20 feet of wall space. This type of pricing is a common method used by kitchen cabinet retailers to help customers determine which cabinets cost less and which cost more. Below there are 10 cabinets and 3 accessories which we have used in the sample kitchen seen in the image below. These cabinets are the least expensive options for each finish as this is to be used as a starting point for you to gauge which finishes are less expensive and which are a bit more. We have priced out all of our finishes and listed the basic kitchen price below them so you are able to easily figure out which finish is more or less expensive than the other finishes. Shipping costs are not included in the basic kitchen pricing.
|
SKU
|
ITEM
|
DESCRIPTION
|
| B09 | 9"W x 34.5"H x 24"D Base Cabinet | 1 Door + 1 Drawer |
| B30 | 24"W x 34.5"H x 24"D Base Cabinet | 2 Door + 1 Drawer |
| SB36 | 36"W x 34.5"H x 24"D Sink Base Cabinet | 2 Door + 1 Fake Drawer |
| BBC42 | 36"W x 34.5"H x 36"D Base Lazy Susan Cabinet | 1 Door + 2 Turn Table |
| W0930 | 9"W x 30"H x 12"D Wall Cabinet | 1 Door |
| W1530 | 15"W x 30"H x 12"D Wall Cabinet | 1 Door |
| W3030 (x2) | 30"W x 30"H x 12"D Wall Cabinet | 2 Door |
| W3012 | 30"W x 12"H x 12"D Wall Cabinet | 2 Door Above Stove |
| W3612 | 36"W x 12"H x 12"D Wall Cabinet | 2 Door Above Refrigerator |
| F30 (x2) | 3" Wall Filler | |
| BF3/F30 | 3" Base Filler | |
| DWR | Dish Washer End Panel | |
|
Note:
|
Soft-Close doors and drawers are included in the price for most of the styles. | |



